Heb je geen volledig interieuradvies nodig? Misschien heb je slechts hulp nodig bij een van de volgende "aanvullende & losse diensten".
Je kunt ook je eigen bouwstenen samenstellen. Misschien heb je alleen een verlichtingsplan of kleuradvies nodig, of misschien allebei.
Bekijk de opties hieronder en kies de kleine diensten die van toepassing zijn op jouw situatie.
Aanvullende & losse diensten


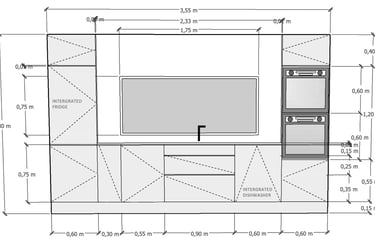
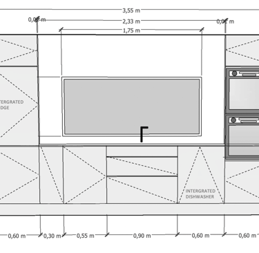
Keuken ontwerp
Ga voor je droomkeuken!
Ben je toe aan een frisse wind in je keuken? Of ben je net verhuisd en weet je niet meer waar je moet beginnen?
Met dit pakket krijg je alle tools voor een prachtig keukendesign.
Alles wat je hieronder ziet, is bespreekbaar. Jouw wensen kunnen immers ergens anders liggen. Met dit designpakket heb je alles wat je nodig hebt om het interieur van je keuken compleet te maken.
Je ontvangt een 2D-plan waarin precies staat hoe je je meubels en accessoires het beste kunt plaatsen om optimaal gebruik te maken van je ruimte.
*Als je een duidelijker beeld van je keuken wilt, is het altijd mogelijk om een 3D-ontwerp in SketchUp te maken.


Lichtplan
Een verlichtingsplan is een gedetailleerde plattegrond die aangeeft waar verschillende soorten verlichting in een ruimte worden geplaatst. Het omvat de positionering van plafondlampen, wandlampen, vloerlampen en andere lichtbronnen, samen met het type verlichting (bijv. algemene verlichting, accentverlichting, taakverlichting) dat wordt gebruikt om de gewenste sfeer en functionaliteit te bereiken.
Een verlichtingsplan is cruciaal omdat het:
❁ Functionaliteit en veiligheid voor taken garandeert.
❁ De sfeer en ambiance van een ruimte bepaalt.
❁ Esthetiek verbetert en aandachtspunten accentueert.
❁ Visueel comfort biedt door schittering en schaduwen te verminderen.
❁ Energie-efficiëntie bevordert met strategische verlichtingskeuzes.
❁ Flexibiliteit biedt met verstelbare lichtregelingen.
❁ Kortom, een verlichtingsplan is essentieel voor het creëren van een goed ontworpen en comfortabele woon- of werkomgeving.
* Je ontvangt het verlichtingsplan in de vorm van een plattegrond waarop de exacte locatie van het lichtpunt, de lichtkleur, dimbaarheid, CRI-waarde en voorgestelde armaturen worden aangegeven.
Indelingsplan
Het belangrijkste element dat je nodig hebt voordat je aan een renovatie begint, is zonder twijfel een goed ontwikkeld indelingsplan.
Ben je van plan om een renovatieproject aan te pakken? De kans is groot dat je nadenkt over de beste strategieën om de functionaliteit en efficiëntie van je ruimte te optimaliseren.
Een indelingsplan is iets voor jou als je:
❁ De ruimte zo efficiënt mogelijk wilt benutten
❁ De functionaliteit van de ruimte wilt verbeteren
❁ De esthetiek en het comfort wilt verbeteren
❁ Op zoek bent naar ruimtelijke, creatieve oplossingen
Je krijgt minimaal drie indelingsopties.
Kleur en materiaal advies
Kleuradvies is voor jou als je:
❁ Hulp nodig hebt bij het kiezen van de juiste kleuren en waar deze toegepast moeten worden.
❁ Op zoek bent naar eenheid, balans en samenhang.
❁ Elementen in de ruimte wilt laten opvallen of juist wilt camoufleren.
- - - - - - - - - -
❁ Afspraak van ongeveer 1 uur bij jou thuis.
❁ We nemen al onze kleurwaaiers mee.
❁ We sturen je de gekozen kleurnummers per e-mail toe.
*Het kleuradvies omvat een palet van aanbevolen basiskleuren en accentkleuren.
Daarnaast ontvang je een concreet plan waarin staat welke kleuren waar in de ruimte moeten worden gebruikt.




Meubel / shopping advies
Op basis van jouw stijl, bestaande meubels, budget en andere wensen zal ik op zoek gaan naar geschikte meubels voor jouw interieur.
Dit kan indicatief zijn, maar als je wilt kan ik ook een volledige shoppinglist samenstellen. Hierop staat precies waar je iets kunt kopen, hoeveel je nodig hebt, welk type, materiaal, enzovoort.
Dit bespaart je veel tijd en voorkomt miskopen.
Natuurlijk kunnen we ook samen op stap gaan naar een aantal woonwinkels om zelfverzekerde je nieuwe meubilair te kunnen kopen.


Maatwerk meubels
* Je ontvangt het op maat gemaakte meubel in een 2D-ontwerp (eventueel in 3D-ontwerp) inclusief afmetingen en materiaalselectie.
Een oplossing op maat is iets voor u als u op zoek bent naar:
❁ Een perfect passende oplossing voor de beschikbare ruimte.
❁ Een creatieve oplossing.
❁ Een meubelstuk dat perfect past bij de rest van het interieur.
❁ Een uniek object: van ontwerp tot materialisatie. Speciaal voor jou gemaakt.
3D Visualisation
Je weet wat je wilt, maar eigenlijk heb je geen idee hoe het eruit zal zien.
Ik kan je helpen door je ruimte in 3D te tekenen, laten we erover praten en je idee werkelijkheid maken.
We kunnen de opties bespreken.
❁ Het is mogelijk om samen te komen zodra het ontwerp klaar is en wat dingen hier en daar te verplaatsen als het niet wordt zoals je had gehoopt.


Goed om te weten:
❁ De prijzen zijn exclusief 21% btw
❁ Exclusief reiskostenvergoeding à € 0,30 buiten een straal van 20 kilometer in het centrum van Maastricht.
© Copyright 2024 Calma Interior Design
jamie@calmainteriorstudio.com
+31 6 36494452
KVK 95600817
Design: Jamie Kuipers
Contact
CALMA
I N T E R I O R D E S I G N
Terms and Conditions
BTW 123456780
